农村三层别墅设计图,高大气派,气场磅礴自带强大气场
农村三层别墅设计图,高大气派,气场磅礴自带强大气场
现在,每个人都没有想到回家盖房子的热度。别墅像竹笋一样涌出土地,外观非常漂亮。由此可见,设计图纸的重要性,完美的设计图纸起着至关重要的作用。高层别墅建造的高大气派,气势磅礴。小户型别墅也应该独特、小巧、精致。这样,房子将会受到户主和家人的喜爱。本期小编梳理了五款农村三层别墅设计图纸,各具特色,功能空间充足。我希望你能喜欢它们。感兴趣的兄弟朋友们,让我们一起来看看吧!
别墅图一展示:
占地面积:11.82m*12.62m,125.142平方米左右;
建筑层高:三层;
建筑高度:11.2米(含屋顶);

别墅效果图
设计功能:

一层户型图
一层户型:客厅、餐厅、厨房、卧室(带卫生间)、卧室、卫生间;

二层户型图
二层户型:客厅上空、小客厅、卧室(带卫生间)、卧室x2、卫生间、阳台;

三层户型图
三层户型:卧室x2、卫生间、露台、凉亭(带顶);
别墅图二展示:
占地面积:10.02m*12.76m,131.08平方米左右;
建筑层高:三层;
建筑高度:10.42米(含屋顶);

别墅效果图
设计功能:

一层平面图
一层户型:客厅、厨房、餐厅、卧室(卫生间)x2、卫生间;

二层平面图
二层户型:客厅上空、小客厅、卧室(卫生间)x2、卧室、卫生间;

三层平面图
三层户型:棋牌室、书房、卧室(卫生间)x2、卧室、露台;
别墅图三展示:
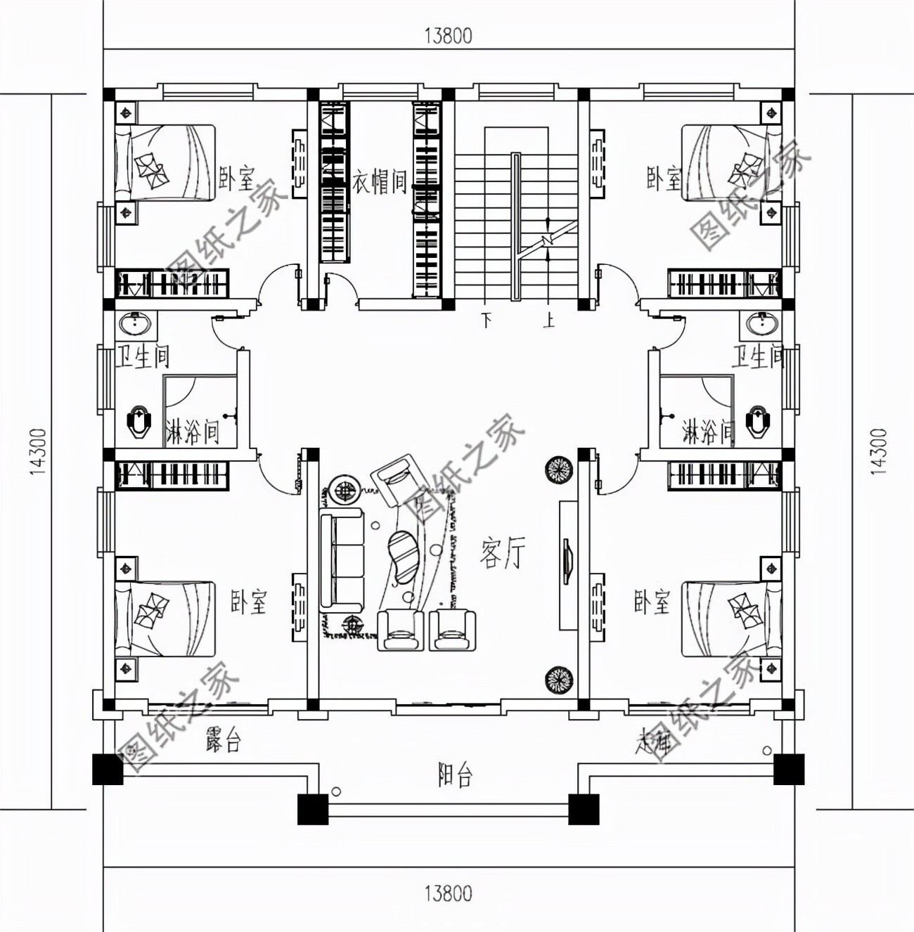
占地面积:13.8m*14.3m,170平方米左右;
建筑层高:三层;
建筑高度:11.7米(含屋顶);

正面效果图

鸟瞰效果图

侧面效果图
设计功能:

一层户型图
一层户型:门厅、走廊、客厅、厨房、餐厅、储藏间、卧室x2、卫生间;

二层户型图
二层户型:客厅、卧室x4、衣帽间、卫生间x2、阳台、露台;

三层户型图
三层户型:卧室x2、卫生间、凉亭、露台;
别墅图四展示:
占地面积:13.1m*16.5m,201.25平方米左右;
建筑层高:三层;
建筑高度:13.151米(含屋顶);

别墅效果图
设计功能:

一层平面图
一层户型:客厅、土灶间、洗衣房、厨房、餐厅、卧室(带卫生间)、卧室、卫生间;

二层平面图
二层户型:客厅上空、客厅、茶室、卧室(带卫生间)x2、卧室、卫生间、阳台;

三层平面图
三层户型:客厅、棋牌室、影音室、卧室(带卫生间)x2、露台x2;
别墅图五展示:
占地面积:14.2m*13.6m,一层占地160平方米左右;
建筑层高:三层;
建筑高度:12.5米(含屋顶);

正面效果图

侧面效果图

鸟瞰效果图
设计功能:

一层户型图
一 层:客厅、卧室、棋牌室、茶座、练歌房(带卫生间)、卫生间;

二层户型图
二 层:客厅上空、卧室(带卫生间)、卧室x2、卫生间、露台;

三层户型图
三 层:起居室、卧室x2、娱乐室、卫生间、大露台;
以上就是本期小编带给大家的全部内容了感兴趣的小伙伴们别忘了要收藏关注呦~!我会继续带给大家不一样的建房知识,希望大家都能够喜欢!
标签:
